Rozwiązania dla architektów i projektantów — Skymax Living
Rozwiązania

Dla projektantów i architektów

Twórz przyszłość nowoczesnego budownictwa z inteligentnym systemem z lekkiej stali ocynkowanej, który pozwala projektować szybciej, precyzyjniej i z maksymalną czystością konstrukcyjną.

Przejdź do strefy dla architektów 🔒

LGSF - Konstrukcje z lekkiej stali ocynkowanej

Proste rozwiązanie dla Twoich projektów – szybsze projektowanie, precyzyjne dane, wsparcie na każdym etapie.

Konstrukcje LGSF z pełnym wsparciem

Projektuj szybciej i efektywniej z konstrukcjami z lekkiej stali ocynkowanej. Dzięki LGSF oszczędzasz czas i koszty – z gotowym wsparciem technicznym, bibliotekami przegrodzeń do ArchiCAD oraz praktycznymi materiałami projektowymi możesz skupić się na tym, co najważniejsze – wysokiej jakości projekt bez zbędnych ograniczeń.

Szczegółowy opis techniczny systemów LGSF

Szczegółowy opis

Szczegółowy opis systemu budowlanego (od sposobu fundamentowania aż po dach, opis zmienności, możliwości rozwiązań architektonicznych itp.)

Wsparcie techniczne dla architektów

Wsparcie techniczne

Rozwiązania konstrukcyjne (statyka), Odporność ogniowa, Świadectwo energetyczne, Dokumentacja zmiany budowy przed zakończeniem, Dokumentacja warsztatowa, Certyfikacja

Biblioteka certyfikowanych zestawów konstrukcji

Biblioteka przegrodzeń i elementów

AutoCAD, Revit PDF, DWG, IFC, BIM – do pobrania po rejestracji Przegrody, Detale budowlane, Detale montażowe, Opisy elementów łączących

Eksperckie doradztwo i konsultacje

Wsparcie i doradztwo

Konsultacje projektowe, przygotowanie do statyki, dobór materiałów, łączenie LGSF z innymi technologiami

Wizualizacje i modele 3D konstrukcji LGSF

Wizualizacje

Przygotowanie materiałów do wizualizacji projektu, wizualizacje rozwiązań konstrukcyjnych i finalnego produktu.

Szkolenia i edukacja w zakresie LGSF

Szkolenia

Przygotowanie do pracy i wdrożenie LGSF w projektach, certyfikacja systemu Skymax Living

Fundamentowanie budowy

Wejdź w świat efektywnego i niezawodnego fundamentowania Twoich budów z naszym systemem LGSF od Skymax Living. Nasze rozwiązania oferują solidne i precyzyjne fundamenty, które gwarantują długoterminową stabilność i jakość Twojej inwestycji. Współpracujemy z Tobą od wstępnego planowania, przez precyzyjne obliczenia inżynierskie, aż po realizację, aby zapewnić, że Twoje projekty zaczynają się prawidłowo od podstaw. Dołącz do naszych zadowolonych partnerów i wykorzystaj nasze doświadczenie do realizacji swoich wizji.

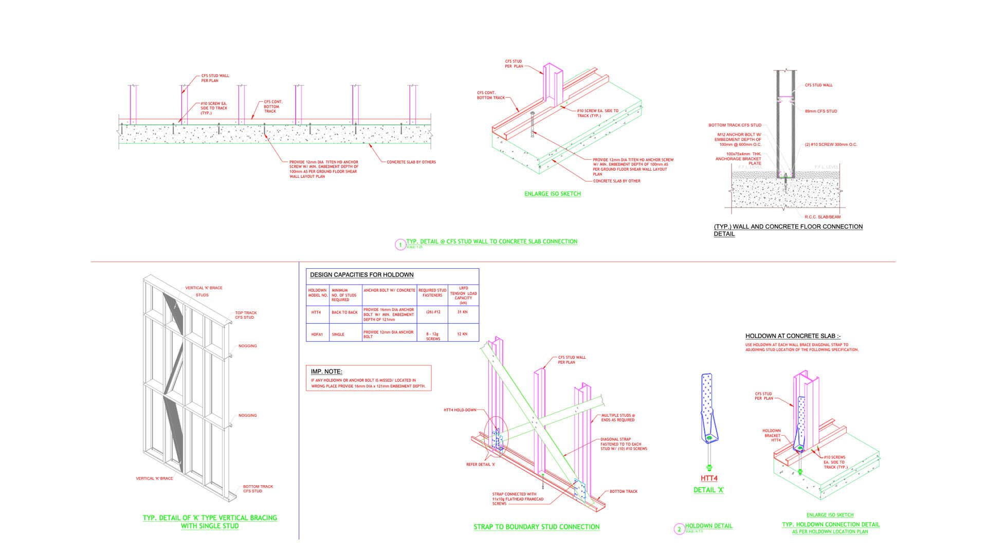
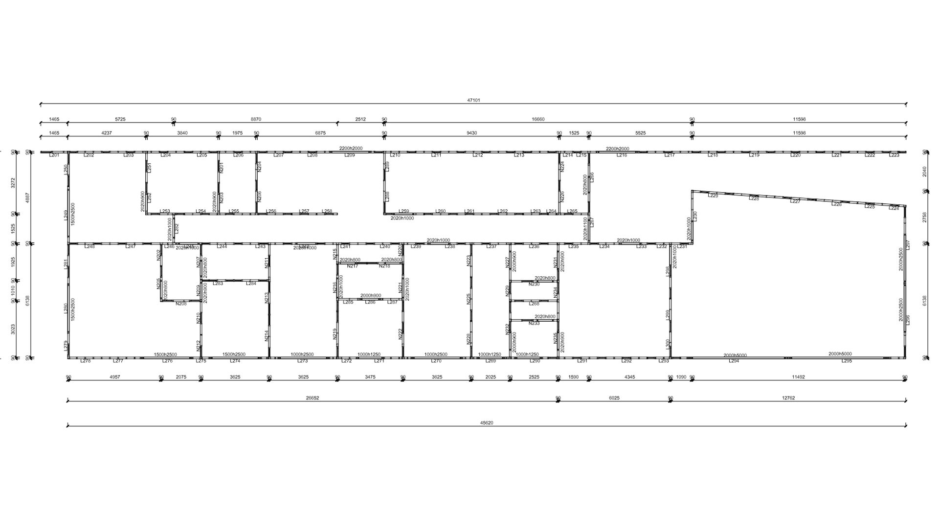
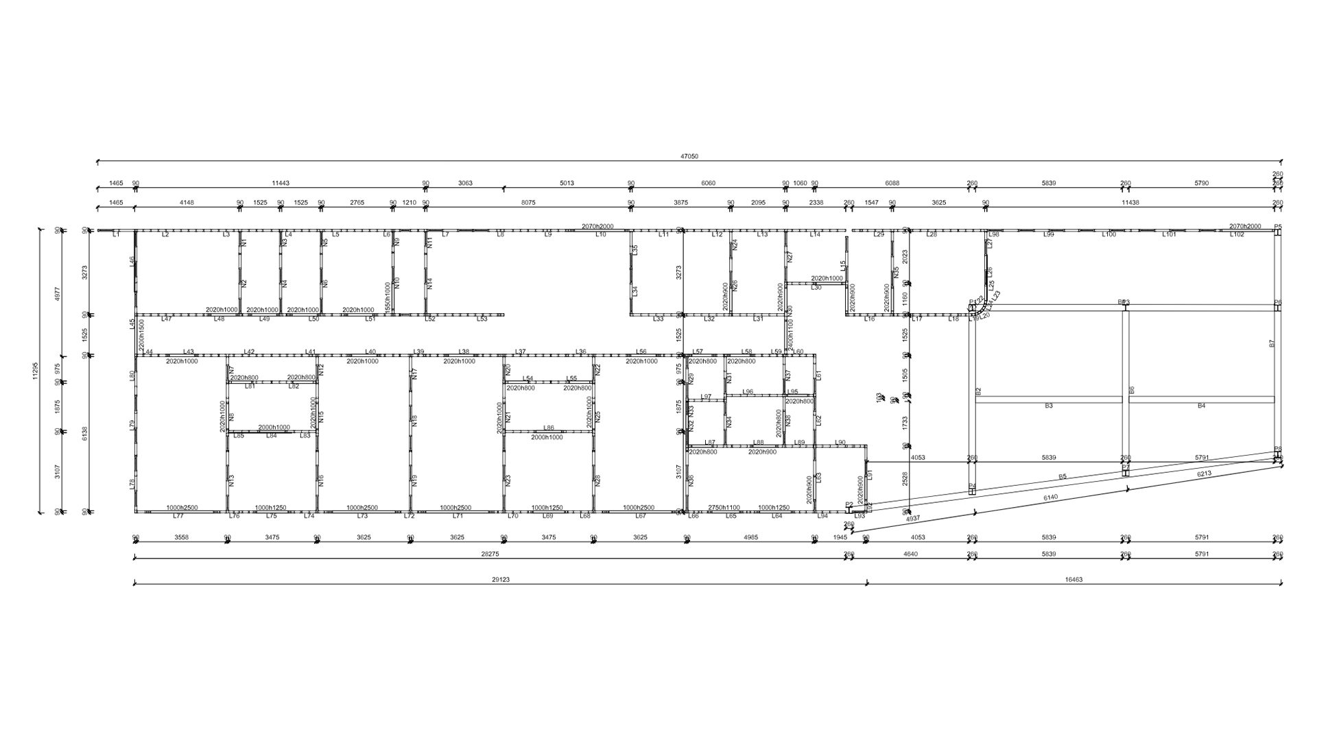
Przegrody / Detale

Odkryj szeroki zakres detali i przegrodzeń konstrukcyjnych, które zapewniają elastyczność i doskonałe dopasowanie do projektów. Nasze detale techniczne są zaprojektowane tak, aby spełniać najwyższe standardy budowlane, uwzględniając estetykę, funkcjonalność i efektywność energetyczną. Z naszymi materiałami zyskasz pewność precyzyjnej realizacji i łatwego wykonania technicznego. Zainspiruj się naszą ofertą wzorcowych przegrodzeń i rozwiązań technicznych.

Konstrukcje Skymax (dokumentacja warsztatowa)

Uzyskaj kompletną dokumentację warsztatową dla swoich projektów budowlanych z naszym systemem LGSF. Nasi technicy przygotują szczegółowe rysunki i dokumentację, które ułatwią produkcję i montaż, minimalizując ryzyko. Współpracując z nami zyskujesz pewność precyzji i efektywności, co pozwala przyspieszyć realizację i podnieść jakość końcowego efektu.

Projekty na zamówienie i studia

Przygotujemy dla Ciebie indywidualne projekty i studia dopasowane do Twoich wymagań i oczekiwań. Dzięki doświadczeniu z różnymi typami budynków i rozwiązań konstrukcyjnych pomożemy znaleźć optymalną opcję łączącą estetykę, funkcjonalność i efektywność energetyczną. Z nami stworzysz unikalne i innowacyjne budynki, które zachwycą i spełnią oczekiwania Twoich klientów.

Wsparcie techniczne

Zapewniamy kompleksowe wsparcie techniczne od projektu aż po realizację budowy. Pomożemy w ocenie energetycznej, bezpieczeństwie pożarowym oraz statyce, zapewniając zgodność projektu ze wszystkimi wymogami prawnymi. Współpracujemy z czołowymi producentami takimi jak Saint-Gobain, Goldbeck i inni, dzięki czemu oferujemy szeroką gamę materiałów i rozwiązań systemowych – od warstw izolacyjnych i elewacji po designerskie okładziny. Elastyczne systemy konstrukcyjne LGSF umożliwiają realizację różnorodnych wizji architektonicznych, w tym pergoli, saun czy garaży. Twój projekt zyska nie tylko jakość techniczną, ale także wartość estetyczną i użytkową.

Gotowi do projektowania z LGSF?

Uzyskaj dostęp do biblioteki przegrodzeń, danych BIM i materiałów technicznych.

Wejdź do strefy dla architektów 🔒